ideale per Magazzino e Laboratorio/Negozio Grande Capannone

Calcinato (Brescia)

Rif: 2725
Condividi Linkedin Whatsapp Stampa
€ 280.000
Vendita
Capannone industriale
450 Mq
Classe energetica D
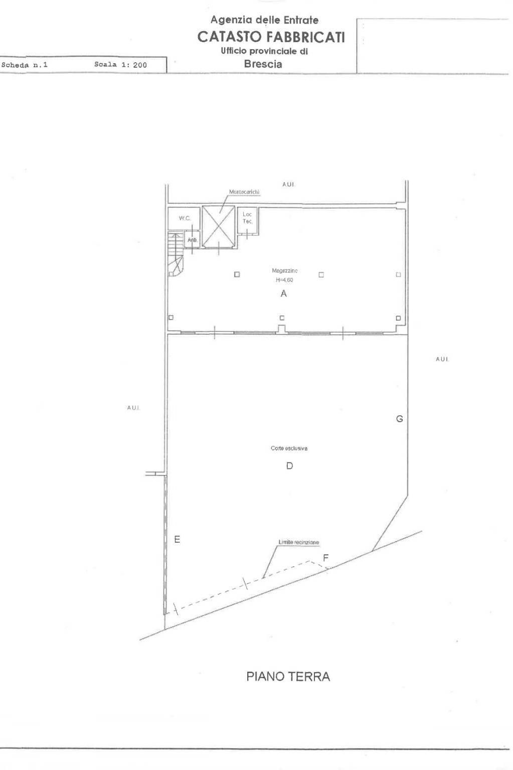
Situato nel comune di Calcinato, a soli 100 metri dalla statale, proponiamo un capannone in vendita che si estende su una superficie totale di 455 mq. Questa proprietà è composta da tre livelli, ognuno dei quali misura circa 150 mq e offre un montacarichi per facilitare il trasporto delle merci.

Il piano terra include un locale adibito alla vendita con bagno e montacarichi, caratterizzato da un'altezza interna di ben 4,60 metri. Al primo piano troverete uno spazio aperto precedentemente utilizzato come laboratorio completo di ufficio e bagno; l'altezza qui è di 3 metri. Infine, al secondo piano c'è una zona al grezzo che può essere trasformata in magazzino o deposito con altezza pari a 2,70 metri.
La struttura è luminosa grazie alle ampie finestre presenti nei vari piani ed ha un cortile privato di circa 330 mq, ideale per carico/scarico merci o semplicemente come area esterna funzionale.

Questo capannone rappresenta la soluzione perfetta per chi cerca spazi versatili destinati all'uso commerciale o industriale: dal magazzino al punto vendita fino ai laboratori artigianali.
Calcinato si trova in una posizione strategica tra Brescia e Desenzano del Garda, rendendola facilmente accessibile sia tramite mezzi pubblici che privati. La zona circostante presenta diverse attività commerciali e servizi utili.
Non perdere questa opportunità! Contattaci subito al 0309913699 per ulteriori informazioni o per prenotare una visita.

Dettaglio immobile

Contratto Vendita
Rif 2725
Prezzo € 280.000
Provincia Brescia
Comune Calcinato
Indirizzo Via Statale
Superficie 450 mq
Classe energetica D (DL 90/2013)
EPgl,nren 65 kwh/m2 anno
Riscaldamento autonomo
Condizioni ottime condizioni
Ascensore no

Consistenze

Descrizione Superficie Sup. comm.
Principali
Capannone - piano terra 150 Mq 150 Mqc
Ufficio - 1° piano 145 Mq 145 Mqc
Capannone - 2° piano 155 Mq 155 Mqc
Totale 450 Mqc

Video

Planimetrie

Richiedi maggiori informazioni

Autorizzazione al trattamento dei dati personali+
Dichiaro di aver letto l'informativa sulla privacy ed accetto le condizioni d'utilizzo del servizio.
Riempi il campo con il codice riportato nell'immagine*
Codice Captcha
Chiamaci Contattaci