in Vendita Lotto Edificabile Industriale Medole

Medole (Mantova)

Rif: 2487
Condividi Linkedin Whatsapp Stampa
€ 583.000
Vendita
Terreno edificabile
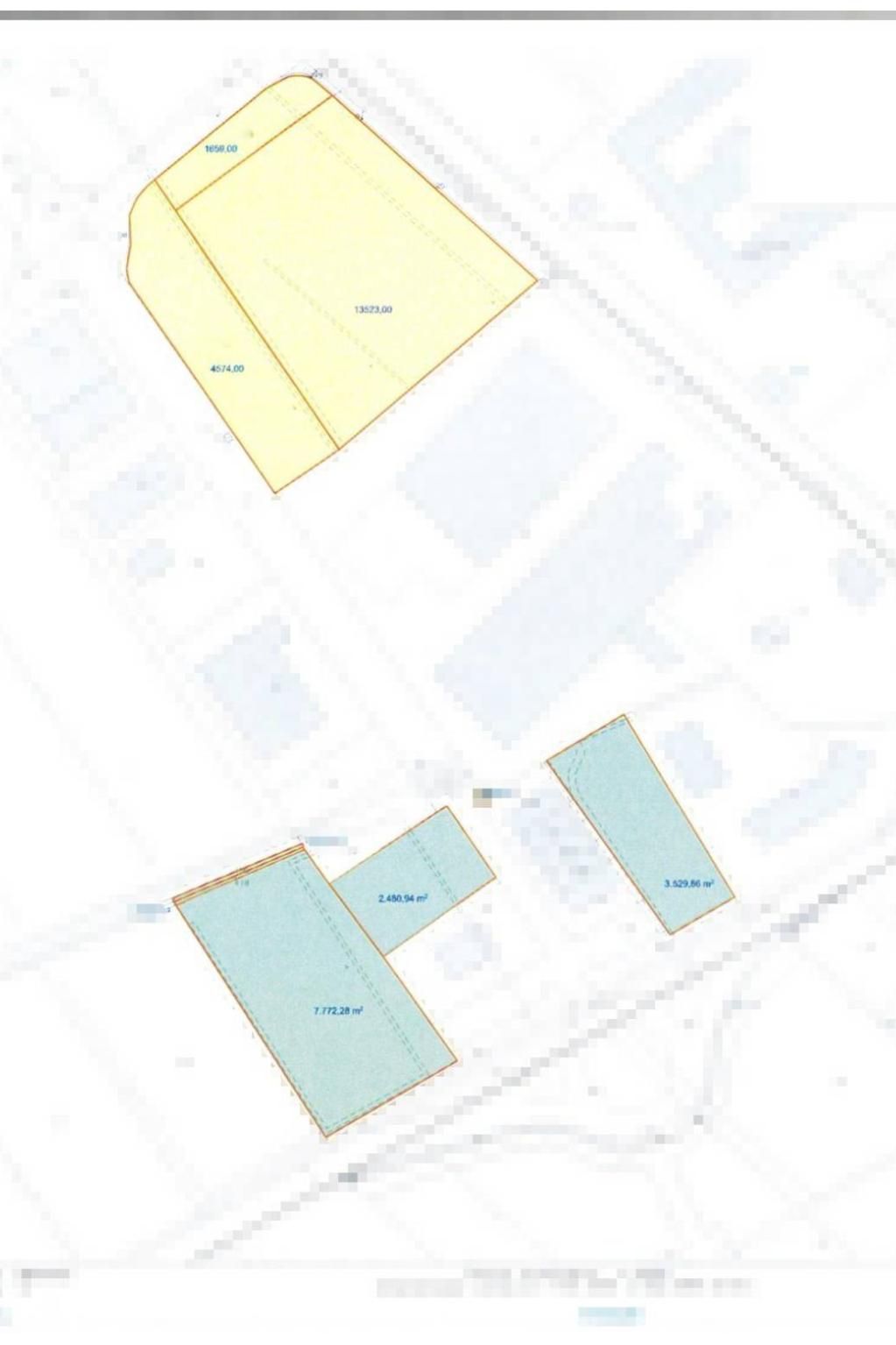
7772 Mq
Scopri la tua prossima grande opportunità di investimento nel cuore della zona industriale di Medole, immersa nelle suggestive campagne lombarde. Proponiamo in vendita lotti di terreno edificabile industriale e artigianale di ben 7.772 mq, perfetto per realizzare capannoni, magazzini o laboratori.
Questa area strategica si trova a pochi passi dalle principali vie di comunicazione e dalla tangenziale, offrendo un accesso facilitato ai mezzi pubblici e privati. Ideale per imprese che cercano uno spazio tranquillo ma facilmente raggiungibile.
Il lotto è urbanizzato con indice di cubatura pari a 0,8 che permette una flessibilità progettuale senza precedenti; l'opportunità perfetta per chi desidera costruire secondo le proprie esigenze.
Sono disponibili tre lotti distintivi con superfici a partire da 2480 mq – scegli il formato giusto per te!
In aggiunta alla posizione favorevole e all'ottimo potenziale costruttivo, i lotto sono situati in una strada secondaria garantendo tranquillità e privacy agli operatori commerciali ed alle loro funzioni produttive.
Non perdere questa occasione: contatta subito la nostra agenzia al numero 030.9913699 per ricevere maggiori informazioni sui terreni disponibili e organizzare una visita sul posto.
Investire non è mai stato così vantaggioso!

“Dati e immagini hanno valore indicativo e saranno confermati in sede di appuntamento. Le foto possono includere render illustrativi; l'indirizzo indica la zona e non l'ubicazione precisa.”

Dettaglio immobile

Contratto Vendita
Rif 2487
Prezzo € 583.000
Provincia Mantova
Comune Medole
Indirizzo Strada Castiglione
Superficie 7772 mq
Ascensore no

Video

Planimetrie

Richiedi maggiori informazioni

Autorizzazione al trattamento dei dati personali+
Dichiaro di aver letto l'informativa sulla privacy ed accetto le condizioni d'utilizzo del servizio.
Riempi il campo con il codice riportato nell'immagine*
Codice Captcha
Chiamaci Contattaci