Elegante Cascinale Ristrutturato con 2 Appartamenti

Calcinato (Brescia)

Rif: 2461
Condividi Linkedin Whatsapp Stampa
€ 369.000
Terratetto
451 Mq
9 Vani
Classe energetica G
5 Camere
2 Bagni
Garage
Situata nella tranquilla frazione di Calcinatello, questa splendida porzione centrale di cascina ristrutturata è un'opportunità unica per chi cerca spazio e comfort. A soli 500 metri dalle scuole e da tutti i servizi del paese, la proprietà si estende su una superficie totale di 450 mq ed è priva di spese condominiali.
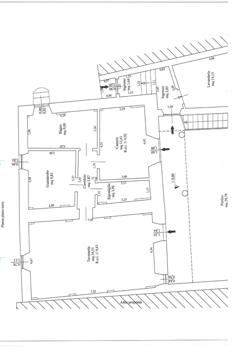
L'abitazione è composta da tre appartamenti ben distribuiti attorno ad una grande corte comune, ideale anche come area parcheggio. Accessibile attraverso un ingresso carraio dalla strada principale, al piano terra troviamo il primo appartamento quadrilocale, che offre circa 140 mq con ampi ambienti caratterizzati da magnifici soffitti a volta; completa l'unità un porticato coperto di ben 30 mq perfetto per godere degli spazi all'aperto in ogni stagione.
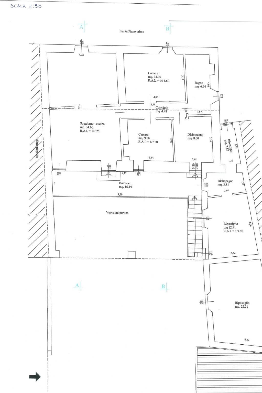
Al piano superiore si trova un secondo appartamento speculare dotato di terrazzo privato (15 mq) e travi a vista che conferiscono calore e stile agli interni. Accanto alla casa principale sorge una seconda porzione della cascina disposta su tre livelli (circa 45 mq ciascuno), attualmente al rustico: qui vi è la possibilità non solo di creare un terzo appartamento ma anche ampliare le unità già esistenti.
Questa versatilità rende l'immobile particolarmente interessante sia per famiglie numerose in cerca dello spazio necessario sia per più nuclei familiari o investitori desiderosi di sfruttare il potenziale redditizio dell'area.
Non perdere quest'occasione! Per ulteriori informazioni o per prenotare una visita contatta subito il nostro team allo 0309913699.

“Dati e immagini hanno valore indicativo e saranno confermati in sede di appuntamento. Le foto possono includere render illustrativi; l'indirizzo indica la zona e non l'ubicazione precisa.”

Dettaglio immobile

Contratto Vendita
Rif 2461
Prezzo € 369.000
Provincia Brescia
Comune Calcinato
Indirizzo Via Croce Santo Stefano
Superficie 451 mq
Vani 9
Camere 5
Bagni 2
Classe energetica G (DL 192/2005)
EPI 175 kwh/m2 anno
Riscaldamento autonomo
Condizioni ottime condizioni
Anno di costruzione 2005
Ascensore no
Garage 20 mq
Cantina si
Parcheggio si
Cucina abitabile
Balcone 15 mq
Terrazza si

Consistenze

Descrizione Superficie Sup. comm.
Principali
Immobile - piano terra 140 Mq 140 Mqc
Terrazza - piano terra 30 Mq 9 Mqc
Immobile - 1° piano 140 Mq 140 Mqc
Balcone - 1° piano 15 Mq 4 Mqc
Immobile - piano rialzato 135 Mq 135 Mqc
Esterno - piano terra 120 Mq 12 Mqc
Box/Garage - piano terra 20 Mq 10 Mqc
Totale 450 Mqc

Video

Planimetrie

Richiedi maggiori informazioni

Autorizzazione al trattamento dei dati personali+
Dichiaro di aver letto l'informativa sulla privacy ed accetto le condizioni d'utilizzo del servizio.
Riempi il campo con il codice riportato nell'immagine*
Codice Captcha
Chiamaci Contattaci