Lotto di Terreno Artigianale con Cascina Ponte San Marco

Calcinato (Brescia)

Rif: 2598
Condividi Linkedin Whatsapp Stampa
€ 480.000
Vendita
Terreno edificabile
4830 Mq
Nel cuore della zona industriale di Ponte San Marco, nel comune di Calcinato, proponiamo un'opportunità unica per tutti gli artigiani e le imprese in cerca di uno spazio strategico. In vendita un terreno artigianale di ben 4.830 mq con una edificabilità del 0,60, perfetto per lo sviluppo delle vostre attività.
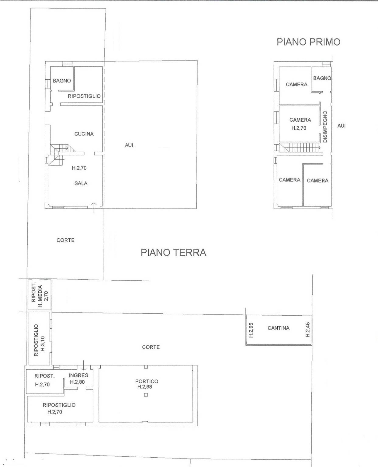
All'interno dell'area si trova una cascina su due livelli di circa 170 mq per piano, ideale come sede operativa o uffici. Inoltre sono presenti un deposito con ufficio (100 mq) e un piccolo magazzino (60 mq), permettendo già da subito una gestione funzionale degli spazi.
La posizione è altamente vantaggiosa grazie alla vicinanza alle principali vie d'accesso e ai servizi locali. Non solo questo: c'è anche la possibilità di acquistare l'area adiacente di ulteriori 10.800 mq con la stessa volumetria edificabile del 0,60 e altezza massima consentita fino a 12 metri.
Questo spazio rappresenta quindi non solo un'opzione immediata ma anche una grande opportunità per eventuali sviluppi futuri nell'ambito artigianale da urbanizzare secondo le proprie esigenze.
Non perdete tempo! Per ulteriori informazioni o per organizzare una visita contattaci al 0309913699.

“Dati e immagini hanno valore indicativo e saranno confermati in sede di appuntamento. Le foto possono includere render illustrativi; l'indirizzo indica la zona e non l'ubicazione precisa.”

Dettaglio immobile

Contratto Vendita
Rif 2598
Prezzo € 480.000
Provincia Brescia
Comune Calcinato
Indirizzo Via Statale
Superficie 4830 mq
Ascensore no

Video

Planimetrie

Richiedi maggiori informazioni

Autorizzazione al trattamento dei dati personali+
Dichiaro di aver letto l'informativa sulla privacy ed accetto le condizioni d'utilizzo del servizio.
Riempi il campo con il codice riportato nell'immagine*
Codice Captcha
Chiamaci Contattaci