In Vendita a Lonato del Garda, Ampio Casale di 350mq

Lonato (Brescia)

Rif: 2740
Condividi Linkedin Whatsapp Stampa
€ 290.000
Terratetto
350 Mq
5 Vani
Giardino
Classe energetica G
4 Camere
2 Bagni
Garage
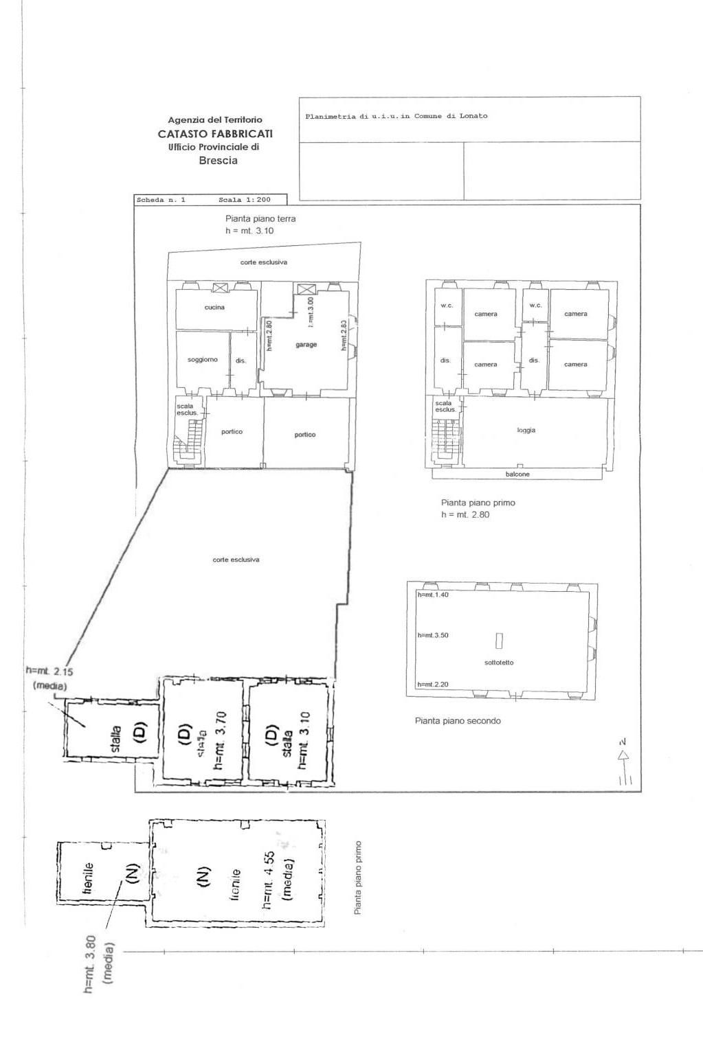
Situato nel cuore di Lonato del Garda, questo affascinante casale terratetto offre un'opportunità unica per chi cerca spazio e comodità. Con una superficie totale di 350 mq, la proprietà è ideale per famiglie o come investimento.

La casa si presenta con un ampio porticato che accoglie gli ospiti in uno spazio luminoso e arioso. Al piano terra troverete saloni spaziosi, una cucina ben attrezzata e cantine funzionali, perfette per riporre vini pregiati o altri beni. Salendo al primo piano, vi sono quattro generose camere da letto e due bagni completi; la loggia offre splendide vedute sul paesaggio circostante. Inoltre, c'è la possibilità di recuperare un grande sottotetto per ampliare ulteriormente lo spazio abitativo.

Le condizioni della casa sono buone: i muri sono abitabili mentre il tetto è stato recentemente rifatto. Gli impianti esistenti funzionano ma potrebbero necessitare di aggiornamenti.
L'immobile vanta anche una corte esclusiva interna con porticati e fienili adiacenti; inoltre c'è l'opzione di acquistare ulteriore spazio (portici, fienili e stalla) con piccolo sovrapprezzo.

Posizionato in una zona comoda ai servizi principali come negozi, scuole e mezzi pubblici, ma immerso nel verde e nella tranquillità; questa proprietà rappresenta non solo un ottimo luogo dove vivere ma anche una valida opportunità d'investimento nella rinomata area del Lago di Garda.
Non perdere l'occasione! Contatta subito l'agenzia al 0309913699 per organizzare una visita.

“Dati e immagini hanno valore indicativo e saranno confermati in sede di appuntamento. Le foto possono includere render illustrativi; l'indirizzo indica la zona e non l'ubicazione precisa.”

Dettaglio immobile

Contratto Vendita
Rif 2740
Prezzo € 290.000
Provincia Brescia
Comune Lonato
Indirizzo Via Cassetta
Superficie 350 mq
Vani 5
Camere 4
Bagni 2
Classe energetica G (DL 192/2005)
EPI 175 kwh/m2 anno
Riscaldamento autonomo
Condizioni abitabile
Anno di costruzione 1980
Ascensore no
Garage singolo si
Cantina si
Parcheggio si
Giardino
Cucina abitabile
Taverna si
Terrazza si
Mansarda si

Consistenze

Descrizione Superficie Sup. comm.
Principali
Immobile - piano rialzato 350 Mq 350 Mqc
Totale 350 Mqc

Video

Planimetrie

Richiedi maggiori informazioni

Autorizzazione al trattamento dei dati personali+
Dichiaro di aver letto l'informativa sulla privacy ed accetto le condizioni d'utilizzo del servizio.
Riempi il campo con il codice riportato nell'immagine*
Codice Captcha
Chiamaci Contattaci