Grande Cascina da Ristrutturare ideale per Edili o Investito

Castiglione delle Stiviere (Mantova)

Rif: 2634
Condividi Linkedin Whatsapp Stampa
€ 350.000
Vendita
Rustico casale
700 Mq
15 Vani
Classe energetica G
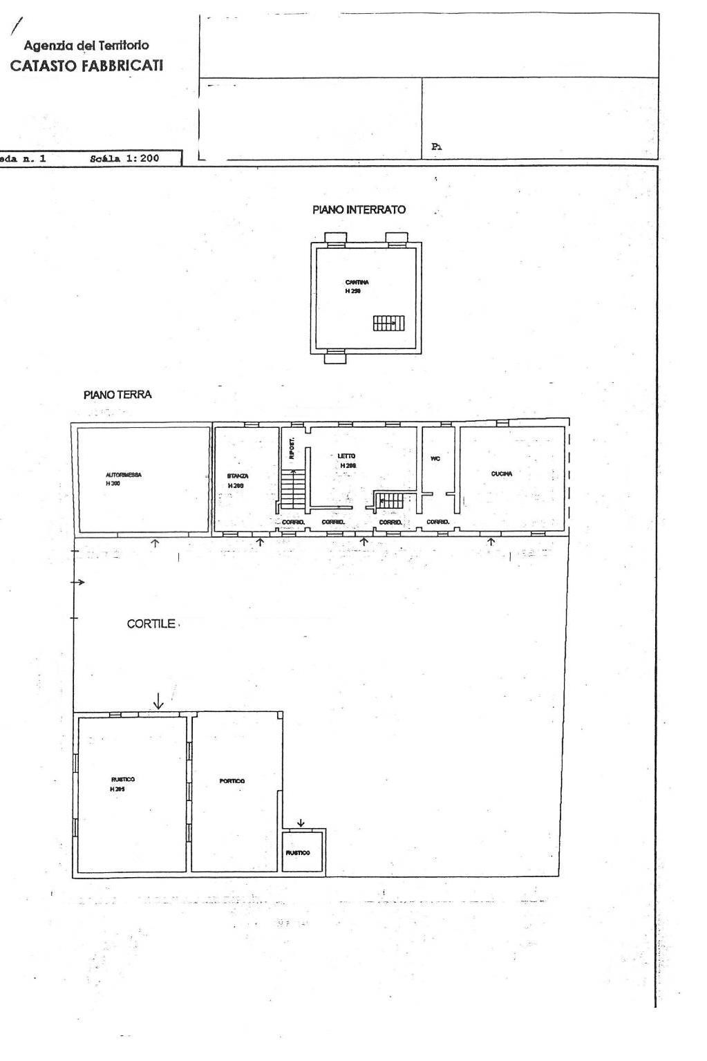
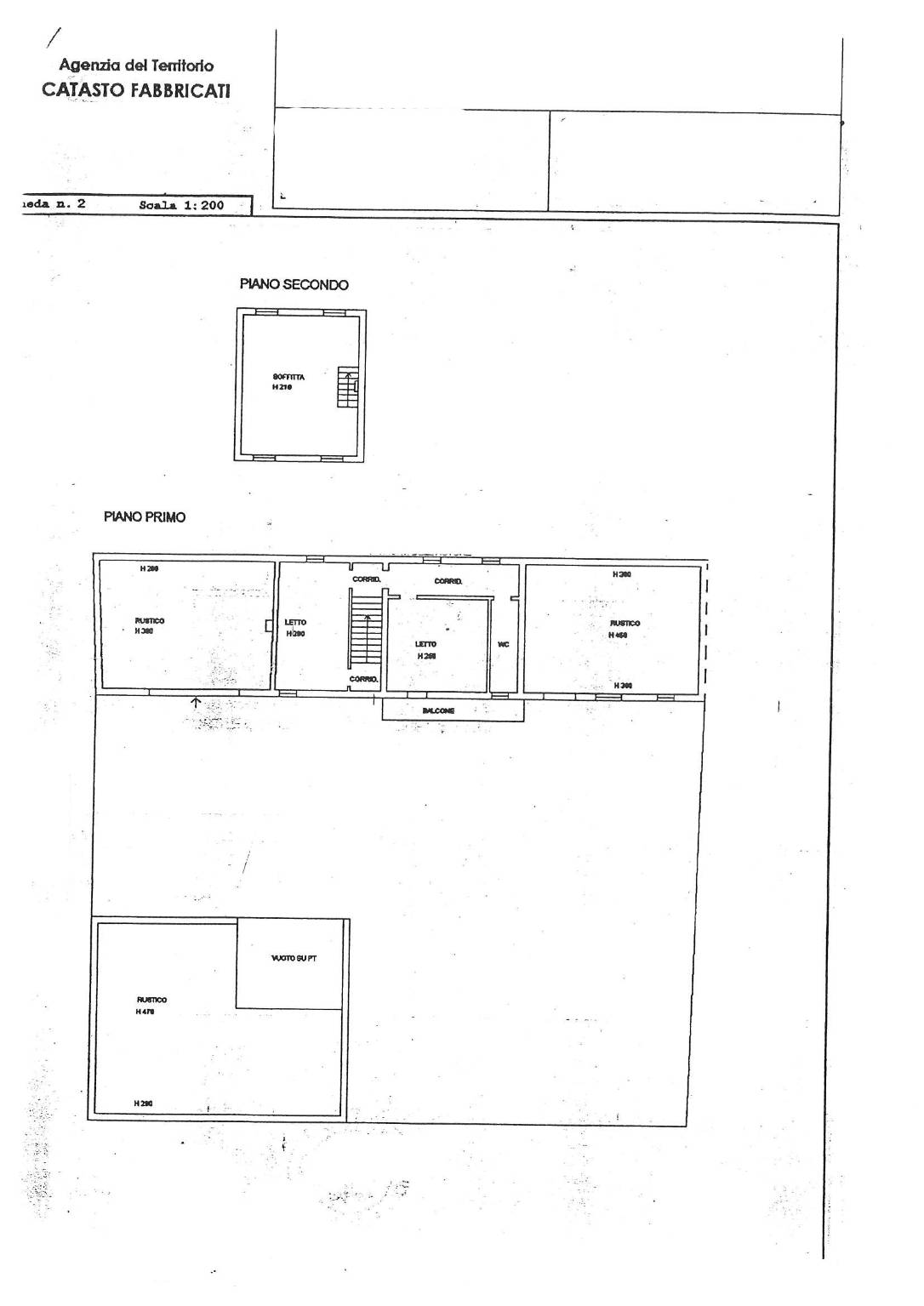
Scopri questo affascinante rustico cascina situato nel pittoresco comune di Castiglione delle Stiviere, nella zona Astore. Con una metratura generosa di ben 700 mq coperti, questa proprietà rappresenta un'opportunità unica per gli amanti della natura e del design rurale.
Immerso nelle colline che collegano Castiglione e Desenzano, il casale dispone di una vasta corte interna che offre un'atmosfera serena e tranquilla. L'immobile si sviluppa su tre corpi di fabbrica: l'abitazione principale supera i 140 mq ed è affiancata da uno stabile laterale con porticato e fienili spaziosi. Questi elementi ti permetteranno di personalizzare lo spazio secondo le tue esigenze.
È importante notare che la struttura necessita di ristrutturazione completa ad eccezione dei muri esterni; tuttavia, ciò rappresenta anche un'opportunità imperdibile per creare la tua residenza ideale o magari trasformarla in uno splendido B&B. La posizione strategica permette facilmente di raggiungere il lago in soli 15 minuti d'auto.
Il borghetto antico circostante regala charme storico e tranquillità, immerso nelle verdi campagne castiglionesi. Questo casale è perfetto non solo per più famiglie alla ricerca della loro oasi privata ma anche come B&B grazie alle sue generose dimensioni.
Non perdere questa incredibile occasione! Contattaci al 0309913699 oggi stesso per maggiori informazioni o per organizzare una visita.

“Dati e immagini hanno valore indicativo e saranno confermati in sede di appuntamento. Le foto possono includere render illustrativi; l'indirizzo indica la zona e non l'ubicazione precisa.”

Dettaglio immobile

Contratto Vendita
Rif 2634
Prezzo € 350.000
Provincia Mantova
Comune Castiglione delle Stiviere
Indirizzo Via Morti Dell'Astore
Superficie 700 mq
Vani 15
Classe energetica G (DL 192/2005)
EPI 175 kwh/m2 anno
Riscaldamento inesistente
Condizioni da ristrutturare
Anno di costruzione 1950
Ascensore no

Consistenze

Descrizione Superficie Sup. comm.
Principali
Altro - piano rialzato 700 Mq 700 Mqc
Totale 700 Mqc

Video

Planimetrie

Richiedi maggiori informazioni

Autorizzazione al trattamento dei dati personali+
Dichiaro di aver letto l'informativa sulla privacy ed accetto le condizioni d'utilizzo del servizio.
Riempi il campo con il codice riportato nell'immagine*
Codice Captcha
Chiamaci Contattaci