Fornaci Villa Bifamiliare di Prestigio con Ampio Giardino -

Flero (Brescia)

Rif: 2185
Condividi Linkedin Whatsapp Stampa
€ 365.000
Villa plurifamiliare
250 Mq
5 Vani
Giardino
Classe energetica G
3 Camere
3 Bagni
Garage
In una delle zone più richieste e tranquille di Brescia, precisamente nel quartiere Fornaci, proponiamo in vendita un'elegante villa bifamiliare dalle metrature generose (260 mq), circondata da uno splendido giardino piantumato che dona privacy e relax. L'accesso alla proprietà avviene tramite un vialetto riservato che conduce all'ingresso principale caratterizzato da un portone doppio in legno massello ed una veranda curata con fiori e piante ornamentali.

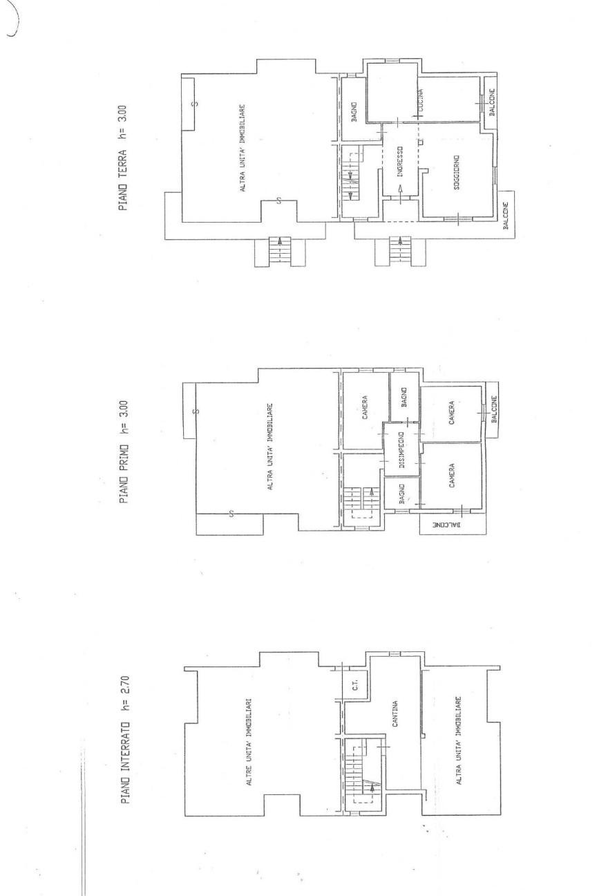
Al piano terra troviamo un ingresso importante che si apre su un ampio salone luminoso grazie alle grandi finestre esposte sul verde del giardino; adiacente la zona pranzo ideale per accogliere amici e familiari, cucina abitabile separata perfetta per chi ama cucinare e bagno finestrato. Salendo al primo piano si sviluppa la zona notte composta da tre spaziose camere matrimoniali (una dotata di bagno privato), secondo bagno anch'esso finestrato oltre a pratico ripostiglio.

Il piano seminterrato ospita una taverna rifinita con camino funzionante – ambiente versatile utilizzabile anche come autorimessa fino a 3 auto –, cantina spaziosa e locale lavanderia/bagno aggiuntivo. Le finiture sono curate: pavimento in cotto lucido, porte interne pregiate in noce nazionale, doppi muri esterni garantiscono ottimo isolamento termico/acustico; caldaia recente già installata.

La soluzione è libera su 3 lati ed offre possibilità di realizzare magazzino/deposito fino a 150 mq sfruttando le generose dimensioni della corte privata.
Zona ben servita dai mezzi pubblici, vicina ai principali servizi cittadini (scuole, supermercati) ma immersa nella tranquillità residenziale tipica del quartiere Fornaci.

Un'occasione unica per famiglie numerose o professionisti che desiderano vivere indipendenti pur restando collegati comodamente al centro città. Per ulteriori informazioni o fissare una visita contatta subito lo Studio Immobiliare al numero 0309913699.

“Dati e immagini hanno valore indicativo e saranno confermati in sede di appuntamento. Le foto possono includere render illustrativi; l'indirizzo indica la zona e non l'ubicazione precisa.”

Dettaglio immobile

Contratto Vendita
Rif 2185
Prezzo € 365.000
Provincia Brescia
Comune Flero
Indirizzo Via Quinzano
Superficie 250 mq
Vani 5
Camere 3
Bagni 3
Classe energetica G (DL 192/2005)
EPI 175 kwh/m2 anno
Riscaldamento autonomo
Condizioni abitabile
Anno di costruzione 1980
Ascensore no
Garage 60 mq
Cantina si
Parcheggio si
Giardino
Cucina abitabile
Taverna si
Balcone si
Terrazza si

Consistenze

Descrizione Superficie Sup. comm.
Principali
Immobile - piano terra 110 Mq 110 Mqc
Immobile - 1° piano 110 Mq 110 Mqc
Box/Garage - seminterrato 60 Mq 30 Mqc
Totale 250 Mqc

Video

Planimetrie

Richiedi maggiori informazioni

Autorizzazione al trattamento dei dati personali+
Dichiaro di aver letto l'informativa sulla privacy ed accetto le condizioni d'utilizzo del servizio.
Riempi il campo con il codice riportato nell'immagine*
Codice Captcha
Chiamaci Contattaci